【土地図】
- 土地面積(坪数)
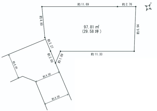
- 110.41㎡(33.39坪)
- 建ぺい率 / 容積率
- 40% / 80%
- 販売区画数
- 2区画
- 総区画数
- 2区画
- 土地面積(坪数)
- 110.41㎡(33.39坪)
- 坪単価
- 167.12万円
- 私道負担面積
割合 -
-
- セットバック
- 無
- 建ぺい率 /
容積率 - 40% / 80%
- 高圧線下面積
- -
- 傾斜地部分面積
- -
- 路地状敷地
- -
- 地目
- 宅地
- 地勢
- -
- 造成工事
完了予定 - -
- 土地権利
- 所有権
- 建築条件
- 無
- 都市計画
- 市街化区域
- 用途地域
- 第一種低層住居専用
- 接道状況
- 一方(南東 私道 4.0m)
- 国土法届出要否
- 不要
- 最適用途
- 住宅用地
- その他
法令上の制限 - -
- 取引態様
- 仲介
- 現況
- 更地
- 引渡条件
- 相談
- 引渡時期
- 相談
- 開発許可番号
- -
- 取引条件の
有効期限 - 2026年03月13日
- 設備条件
-
- 閑静な住宅地 / 都市ガス / 公営水道 / 公共下水
- 設備(その他)
-
-
-
- 物件番号
- 101589790
- 管理コード
- -
- 情報更新日
- 2026年02月27日
- 次回更新予定日
- 2026年03月13日
- 取扱会社
-
- アルカス住宅販売株式会社 練馬南大泉店
- 東京都練馬区南大泉4丁目54-4
- TEL:0120-991-669
- 東京都知事 (6) 第78525号
- 備考
- アルカス住宅販売株式会社 練馬南大泉店は、大泉・石神井・西東京エリア専門店です!
当店は、西武池袋線「保谷」駅南口から徒歩3分!
無料査定はもちろん、いつでも売却相談を承っております!
戸建てや土地をお探しの方には、地元だからこそのエリア内未公開情報も
多数取り揃えておりますので、どうぞお気軽にご来店ください。 -
総合病院
田無病院
666m(9分)
-
小児科
すぎはらこどもクリニック
752m(10分)
-
スーパー
コープみらいひばりヶ丘店
772m(10分)
-
公園
西原自然公園
817m(11分)
-
保育園
けやき保育園
854m(11分)
-
小学校
谷戸小学校
871m(11分)
-
スーパー
西友ひばりが丘団地店
939m(12分)
-
コンビニエンスストア
ファミリーマート西東京西原町店
969m(13分)
-
スーパー
オーケーひばりが丘店
979m(13分)
-
幼稚園
谷戸幼稚園
1063m(14分)
-
幼稚園
明成幼稚園
1109m(14分)
-
ショッピングセンター
イオンモール東久留米
1477m(19分)
-
ドラッグストア
スギドラッグ西東京北原町店
1592m(20分)
- 月々の支払額
- 円
- 購入希望物件価格
-
万円
- 頭金
-
万円
- 金利
-
%
- 返済額(ボーナス1回分)
-
万円
- 返済期間
-
年
セールスポイント
◆建築条件がありませんのでお好きなハウスメーカーで建築出来ます。ゼロから設計士さんと相談しながら作り上げたい方におススメです。
◆南東道路に面するので、陽当たり良好です!
ポイント
建築条件なし 閑静な住宅地 スーパーが近い 1種低層 緑豊かな住宅地 陽当たり良好 南東道路に面する
担当者のコメント
基本情報
設備条件
その他
西東京市緑町2丁目 土地 西武池袋線 ひばりが丘の他の区画
周辺施設
支払いシミュレーション
※ボーナスは自動で年2回分で計算されます。
近隣の物件
よく見られている物件
西東京市緑町2丁目 土地 西武池袋線 ひばりが丘
5,580万円
-(110.41㎡)

建物請負やハウスメーカー斡旋もお任せください。