西東京市保谷町5丁目 土地 西武新宿線 西武柳沢の基本情報
- 物件名
- 西東京市保谷町5丁目 土地 西武新宿線 西武柳沢
- 価格
- 5,899万円
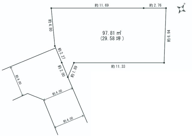
- 土地面積
- 156.70㎡
- 築年月
- -(-)
- 総区画数
- 1区画
西東京市保谷町5丁目 土地 西武新宿線 西武柳沢の詳細情報
- 設備条件
-
- 閑静な住宅地
- 設備(その他)
-
-
-
- 駐車場/月額
- -/-
- 土地権利
- 所有権
- 国土法届出
- 不要
- 用途地域
- 第一種低層住居専用
- 区画数
- 1区画 / -
- 管理形態
- -
- 管理員の勤務形態
- -
- 管理会社
- -
- 取引態様
- 仲介
- 引渡し
- 相談
西東京市保谷町5丁目 土地 西武新宿線 西武柳沢で募集中の物件
周辺施設
-
保育園
生育会和泉保育園
264m(4分)
-
スーパー
いなげや保谷町店
558m(7分)
-
保育園
田無北原保育園
560m(7分)
-
コンビニエンスストア
ローソン西東京北原店
567m(8分)
-
中学校
田無第二中学校
637m(8分)
-
コンビニエンスストア
セブンイレブン保谷本町店
657m(9分)
-
ドラッグストア
スギドラッグ西東京北原町店
667m(9分)
-
幼稚園
宝樹院幼稚園
707m(9分)
-
スーパー
オザム保谷店
720m(9分)
-
幼稚園
谷戸幼稚園
845m(11分)
-
小学校
保谷小学校
956m(12分)
近隣の物件
西東京市保谷町5丁目 土地 西武新宿線 西武柳沢
